Athina Milos Suites | Apartment in Milos

1 Bedroom Apartment in Adamas, Milos
While you're here, you can enjoy all the comforts of home and more, including a refrigerator and a stovetop, as well as free WiFi and a TV. Other amenities include premium bedding, down comforters, towels, and bathrobes.
Amenities
Facility Overview
-
Air conditioning
-
Toilet paper
-
Bathrobes
-
Slippers
-
Toothbrush and toothpaste
-
Towels provided
-
Shampoo
-
Hair dryer
-
Free toiletries
-
Shower
-
Down comforter
-
Bed sheets provided
-
Pillow menu
-
Premium bedding
-
Sitting area
-
Toaster
-
Paper towels
-
Espresso maker
-
Cookware/dishes/utensils
-
Ice maker
-
Coffee/tea maker
-
Refrigerator
-
Electric kettle
-
Stovetop
-
Beach towels
-
Free offsite parking
-
Free self parking on site
-
Street parking available
-
Airport shuttle on request
-
Onsite parking includes off-street options
-
24-hour roundtrip airport shuttle (surcharge)
-
No pets allowed
-
Area rugs in room
-
If you have requests for specific accessibility needs, please contact the property using the information on the reservation confirmation received after booking.
-
Cobblestone flooring in public areas
-
Tile flooring in public areas
-
Soundproofing
-
Tile flooring in room
-
No elevators
-
Smoke-free property
-
Snorkeling nearby
-
Smart speaker
-
42-inch TV with satellite service
-
Tablet computer
-
1 building
-
Built in 2021
-
Art Deco architecture
-
1 floor
-
7 rooms
-
English
-
Greek
-
In a village
-
In the city center
-
Laptop workspace
-
Free crib/infant bed
-
Local maps
-
Guidebooks/recommendations
-
Free bottled water
-
Daily housekeeping
-
Concierge services
-
In-room massages
-
Iron/ironing board
-
Safe
-
Luggage storage
-
Lockers available
-
Free WiFi, with speed of 100+ Mbps (good for 1–2 people or up to 6 devices)
-
Garden
-
Vegetable garden
-
Furnished balcony
-
Outdoor lighting
-
Smoke detector installed (host has indicated there is a smoke detector on the property)
-
Carbon monoxide detector not reported (host has not indicated whether there is a carbon monoxide detector on the property; consider bringing a portable detector)
-
First aid kit
-
Fire extinguisher
Policies
Extra-person charges may apply and vary depending on property policy government-issued photo identification and a credit card, debit card, or cash deposit may be required at check-in for incidental charges host has indicated there is a smoke detector on the property host has not indicated whether there is a carbon monoxide detector on the property; consider bringing a portable detector with you on the trip property registration number 151634938000 safety features at this property include a fire extinguisher, a first aid kit, and outdoor lighting special requests are subject to availability upon check-in and may incur additional charges; special requests cannot be guaranteed this property accepts credit cards; cash is not accepted this property has outdoor spaces, such as balconies, patios, terraces which may not be suitable for children; if you have concerns, we recommend contacting the property prior to your arrival to confirm they can accommodate you in a suitable room
Reviews
Room Arrangement
Room Info | Facilities |
---|---|
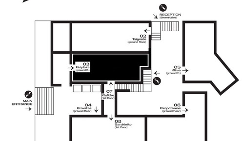
Firiplaka Smart Suite
Room Size:
409 square feet m2
|
GeneralNumber of living rooms 0, Blackout drapes/curtains, Location - ground floor, No rollaway/extra beds, Number of bedrooms - 0, Ping - 11, Square meters - 38, Square feet - 409, In-room playpen, Bed count minimum 2, City view, Bed count maximum 2 |
Kleftiko Smart Suite
Room Size:
603 square feet m2
|
GeneralNumber of living rooms 0, Dining table, Blackout drapes/curtains, Number of bedrooms - 0, Square feet - 603, Location - top floor, Video-game console, In-room playpen, Square meters - 56, Separate dining area, No rollaway/extra beds, Ping - 17, Video games, Bed count maximum 3, City view, Bed count minimum 3 |
Tsigrado Smart Suite
Room Size:
431 square feet m2
|
GeneralNumber of living rooms 0, Square meters - 40, Location - ground floor, No rollaway/extra beds, Number of bedrooms - 0, Ping - 12, In-room playpen, Bed count minimum 2, Square feet - 431, City view, Bed count maximum 2 |
Firopotamos Smart Suite
Room Size:
441 square feet m2
|
GeneralNumber of living rooms 0, Square meters - 41, Dining table, Location - ground floor, No rollaway/extra beds, Number of bedrooms - 0, Ping - 12, In-room playpen, Bed count maximum 3, Square feet - 441, City view, Bed count minimum 3 |
Klima Smart Suite
Room Size:
452 square feet m2
|
GeneralNumber of living rooms 0, Dining table, Number of bedrooms - 0, Raised toilet seat, Ping - 13, In-room playpen, Grab bar - near toilet, Square feet - 452, Separate dining area, Square meters - 42, Lowered electrical outlets in bathroom, Location - ground floor, No rollaway/extra beds, Wheelchair-accessible bathroom vanity, Bed count maximum 3, City view, Bed count minimum 3 |
Provatas Smart Suite
Room Size:
420 square feet m2
|
GeneralNumber of living rooms 0, Location - ground floor, No rollaway/extra beds, Number of bedrooms - 0, Square meters - 39, Ping - 12, In-room playpen, Bed count minimum 2, Square feet - 420, City view, Bed count maximum 2 |
Sarakiniko Smart Suite
Room Size:
712 square feet m2
|
GeneralBed count minimum 4, Square feet - 712, Dining table, Blackout drapes/curtains, Number of bedrooms - 1, Location - top floor, Video-game console, Number of living rooms 1, Ping - 20, Square meters - 66, Separate dining area, No rollaway/extra beds, Video games, Bed count maximum 4, City view |